

Brooklyn Residence
Year
2022
Commissioning Agencies
Peggy Guggenheim Collection
Commissioning Agencies
Peggy Guggenheim Collection
Client
Private Client
Location
Brooklyn, NY
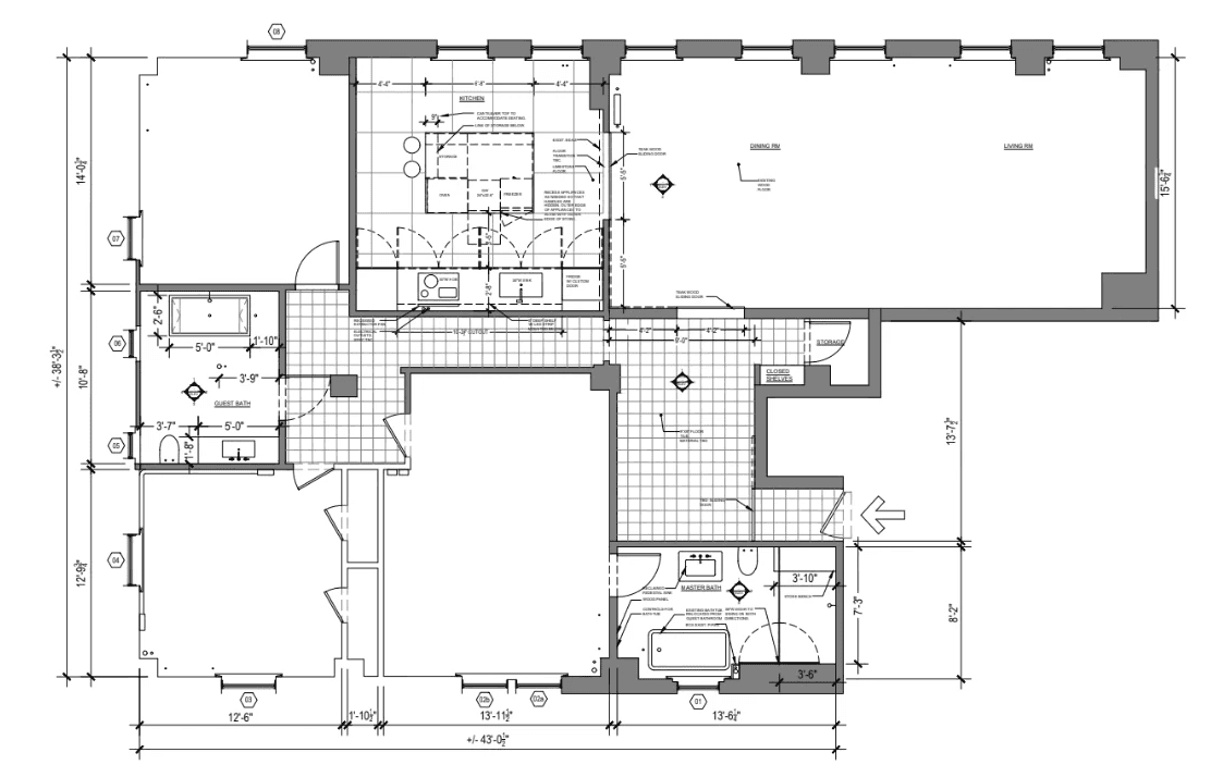
3,500 square foot gut renovation of pre-war apartment governed by rigorous grid system resulting in a consistent minimalist treatment with a focus on materiality and functionality.
Collaborators:
Penelope Phylactopoulos, co-design







































All
Architecture
Monument/Memorial
Public Space
Exhibitions
Signage/Wayfinding
Publications
Workshop/Event
Grants/Competitions
Design Strategy
250 Hudson St. Suite 702
New York, NY 10013
Get in touch
Subscribe to our newsletter
Office of
Open
Practice
Back to top
©2025 Office of Open Practice All Rights Reserved.
All
Architecture
Monument/Memorial
Public Space
Exhibitions
Signage/Wayfinding
Publications
Workshop/Event
Grants/Competitions
Design Strategy
250 Hudson St. Suite 702
New York, NY 10013
Get in touch
Subscribe to our newsletter
Office of
Open
Practice
Back to top
©2025 Office of Open Practice All Rights Reserved.


















